Appartement - La Seyne-sur-Mer


Réf. 1572
La Seyne-sur-Mer - 83500
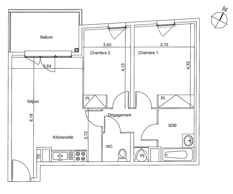
C'est dans le quartier résidentiel de Chateaubanne, au sein d'une copropriété de 2010, que vous découvrirez cet agréable appartement 3 pièces de 57m2. Situé au 2ème étage avec ascenseur, il vous séduira par ses volumes et sa vue dégagée : une belle pièce de vie de près de 23m2, avec cuisine intégrée, donnant sur le balcon de plus de 7m2 avec sa belle vue dégagée. Vous profiterez de deux chambres avec placard, d'une salle d'eau fonctionnelle et d'un wc indépendant. Le plus : un garage dans le sous-sol sécurisé de la copropriété.
Pour votre confort : double vitrage, VMC, rangements. Commerces, accès autoroute et transports en commun à proximité. Les charges de copropriété incluent les consommations d'eau froide.

Bien soumis au statut de la copropriété
Taxe foncière : 1550 €
Les informations sur les risques auxquels ce bien est exposé sont disponibles sur le site Géorisques https://www.georisques.gouv.fr
189 000 €
honoraires charge vendeur
Ascenseur
Oui
Etage
2
Nombre de pièces
3
Nombre de chambres
2
Surface habitable
57 m2
Année de construction
2010
Nombre d'étages
5
Type de cuisine
Americaine -Semi-equipee
Type de chauffage
INDIVIDUEL
Mode de chauffage
ELECTRIQUE
Nature de chauffage
RADIATEUR
Nombre de WC
1
Nombre de salles de bains
1
Nombre de parking intérieurs
1
Nombre de balcons
1
Surface séjour
22 m2
Vue
DEGAGEE
Nous contacter