Appartement - Le Castellet


Réf. 1538
Le Castellet - 83330
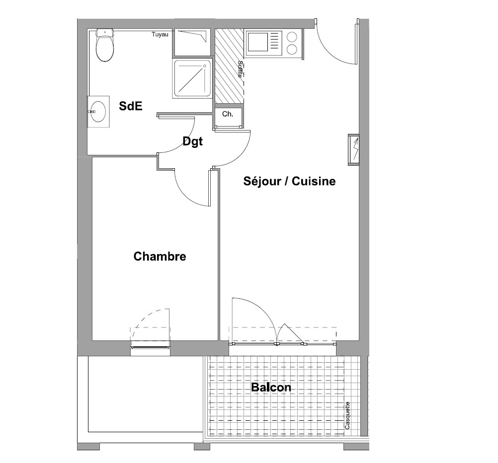
C'est dans une agréable résidence de 2018 que MIRALLES IMMO vous propose à la vente cet appartement 2 pièces de près de 41m2 lumineux et fonctionnel.
Situé au 2ème et dernier étage d'un petit bâtiment, avec ascenseur, il se compose d'un séjour avec kitchenette, ouvrant sur un joli balcon exposé plein sud. Une belle chambre, salle d'eau avec wc.
Pour votre confort : bonnes performances énergétiques pour cet appartement récent, encore sous garantie décennale, double vitrage, chauffage au gaz, volets roulants, fibre optique.
Possibilité d'acquérir un double garage en sus. Nous consulter.
Le plus : commodités du hameau du Plan toutes proches, notamment commerces, écoles (crèche, écoles primaires et maternelles, collège), accès à autoroute, plusieurs lignes de bus desservent la zone. Plages de Bandol et Saint-Cyr-sur-mer à 10 minutes.
A visiter sans tarder !

Bien soumis au statut de la copropriété
Taxe foncière : 800 €
Les informations sur les risques auxquels ce bien est exposé sont disponibles sur le site Géorisques https://www.georisques.gouv.fr
178 500 €
honoraires charge vendeur
Ascenseur
Oui
Etage
2
Nombre de pièces
2
Nombre de chambres
1
Surface habitable
41 m2
Secteur
CAMPAGNE, QUARTIER RESIDENTIEL
Année de construction
2018
Nombre d'étages
2
Type de cuisine
Kitchenette -Semi-equipee
Type de chauffage
INDIVIDUEL
Mode de chauffage
GAZ
Nature de chauffage
RADIATEUR
Nombre de WC
1
Nombre de salles d'eau
1
Nombre de balcons
1
Surface séjour
21 m2
Nous contacter