Appartement - Signes


Réf. 1583
Signes - 83870
C'est dans le joli village de Signes que MIRALLES IMMO vous propose à la vente en exclusivité ce bien à fort potentiel.
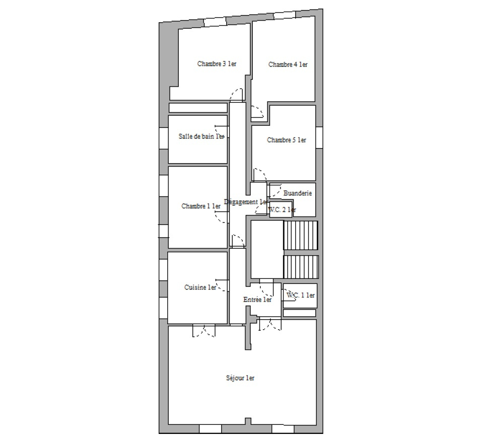
Situé au 1er étage d'un belle bâtisse ancienne en comptant deux, ce vaste appartement développe plus de 175m2 sur un même niveau, offrant de nombreuses possibilités, notammant la division.
L'entrée ouvre sur une pièce à vivre de près de 53m2, un dégagement dessert la cuisine attenante, quatre grandes chambres, dont deux donnent à l'arrière, sur une terrasse cosy en arc-de-cercle. Deux wc dans l'appartement. Un rafraîchissement est à prévoir mais les volumes sont exceptionnels.
Toutes les commodités du village sont accessibles à pieds et l'environnement est agréable.

Les informations sur les risques auxquels ce bien est exposé sont disponibles sur le site Géorisques https://www.georisques.gouv.fr
294 000 €
honoraires charge vendeur
Etage
1
Nombre de pièces
5
Nombre de chambres
4
Surface habitable
175 m2
Secteur
CENTRE VILLE, QUARTIER RESIDENTIEL
Année de construction
1940
Nombre d'étages
2
Type de cuisine
Separee -Semi-equipee
Type de chauffage
INDIVIDUEL
Mode de chauffage
FIOUL
Nature de chauffage
CHAUDIERE
Nombre de WC
2
Nombre de salles de bains
1
Nombre terrasses
1 m2
Surface séjour
52 m2
Nous contacter